La SMAC, petit bâtiment au regard de ceux qui vont être construits autour, est dans une position de pivot entre la plaine plantée et inondable de Saint-Serge et le nouveau quartier.
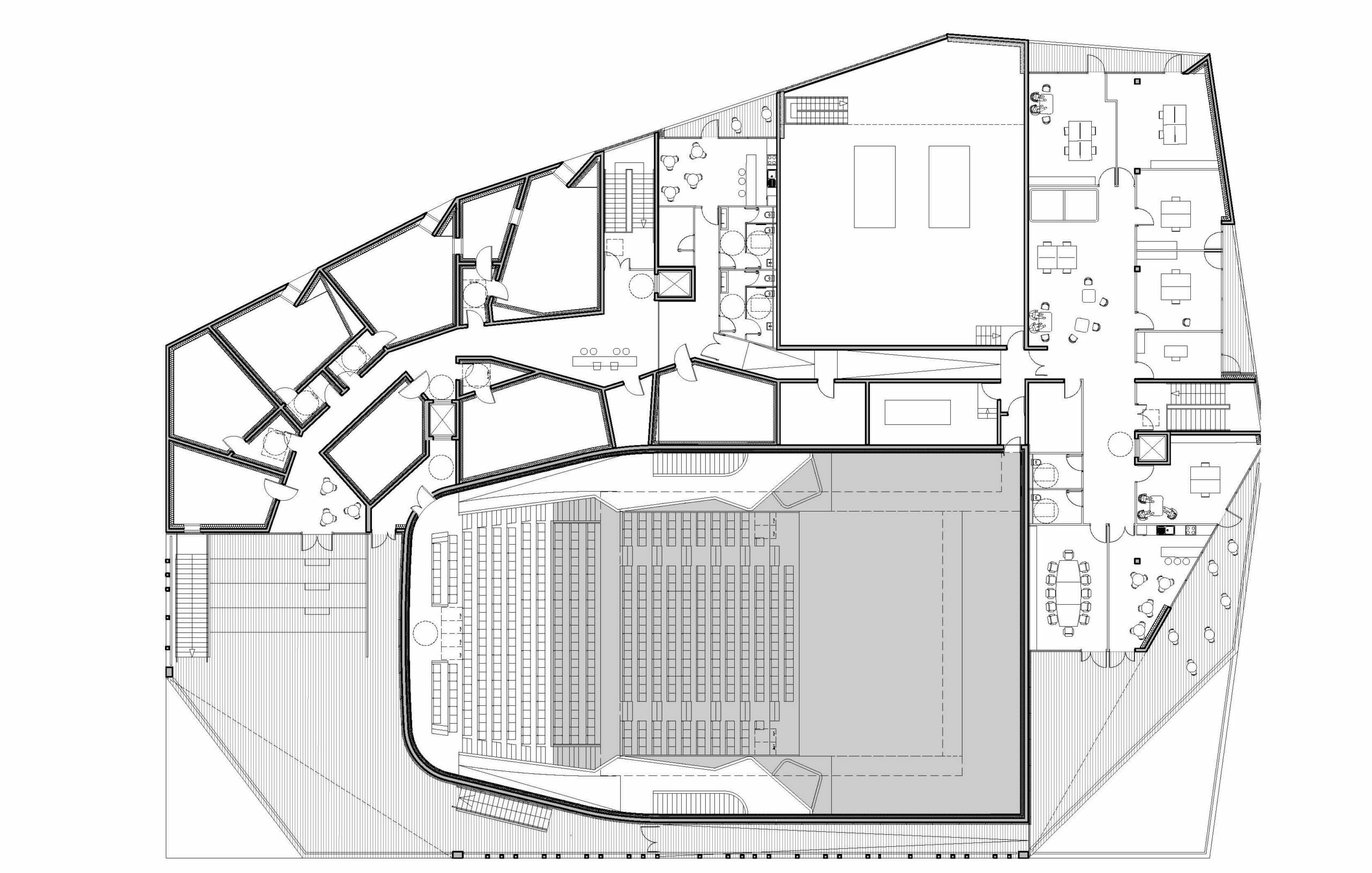
Les deux salles de concert, le double hall, les studios, proposent au public et aux musiciens une gamme d’espaces à la fois ouverts et accessibles, mais aussi très spécialisés et pointus sur le plan technique. Pour le public, cette idée que chacun peut « fabriquer sa propre soirée » au lieu d’être un simple consommateur de spectacle exige d’imaginer un dispositif spatial singulier.
Notre projet est un volume sculptural et ouvert, un pavillon qui semble prolonger le parc mais aussi un édifice structurant du nouveau quartier. Il est travaillé comme une topographie, c’est un volume qui se parcourt horizontalement et verticalement à l’intérieur comme à l’extérieur. Par des jeux de creusements et de décalages, chaque entité programmatique est prolongée par une terrasse bien orientée et ouvrant sur le parc.
Les façades sont en béton clair couleur pierre pour s’accorder avec le tuffeau d’Angers et en bois. La toiture, visible depuis les bâtiments environnants plus hauts, est un paysage composé de jardins, d’allées et de cellules photovoltaïques.
Le projet est une « machine à spectacle » qui doit fonctionner parfaitement. Elle est destinée à un public majoritairement jeune qui nous inspire une architecture efficace et sensible dans laquelle il n’y a pas de place pour le superflu. Le bâtiment répond à l’énergie de la musique, celle d’aujourd’hui et celle de demain.
Le public est accueilli dans un grand porche urbain ouvert entre le parvis et le parc. Le porche abrite les deux entrées principales, l’une vers le hall convivial, l’autre vers le grand hall. Ce vaste espace protégé permet à la foule, les soirs de concert, de faire la queue à l’abri. Un grand escalier extérieur permet de rejoindre directement le rooftop, d’où les vues sur la ville et le parc sont panoramiques.
La grande salle est dessinée comme un espace « rock-baroque », avec un jeu de galeries enveloppantes, réinterprétation contemporaine du théâtre à l’italienne proposant une multiplicité de points de vue vers la scène. La relation scène-salle est optimale, installant les spectateurs au plus près des musiciens.
Les studios sont positionnés en haut du bâtiment, leur plan est dessiné pour que leurs parois ne soient pas parallèles afin d’éviter les phénomènes d’écho. Ils se prolongent par le rooftop, espace festif partagé entre le public et les musiciens, qui comprend une centaine de places en gradins pour l’organisation de spectacles extérieurs.
PLAN R+2
La nouvelle SMAC
FICHE TECHNIQUE
Lieu
- Angers (49)
Maîtrise d’ouvrage
- Alter – Anjou Loire Territoire Ville d’Angers
Surface
- m² SDP 3900
Coût prévisionnel
Calendrier
Concours mai 2022
Livraison prévue 2025
Maîtrise d’œuvre
Hérault Arnod Architectures, mandataires
Mickael Dusson, Directeur de projet
Thomas Ferraud et François Delubac, chef de projet études
Lucia Velasco Suarez, chargée d’études
AIA Ingénierie, structure, VRD
AIA environnement, fluides
BMF conseil, économie
dUCKS scéno, scénographe
Lasa, acoustique
Certifications environnementales
RE2020
Biosourcé niveau 2
NF Habitat HQE Excellent
Programme
Grande salle de 1 200 places,
Seconde salle de 350 places,
8 studios de musiques,
Salle d’actions culturelles,
Halls, porches et terrasses suspendues.
Démarches environnementales
Façades à ossature bois (FOB) avec habillage en briques minérales et bois.
Accueil de la biodiversité : jardin en pleine terre, terrasses plantées avec épaisseurs de substrat importantes, nichoirs à oiseaux et à insectes intégrés dans les façades
Structure bois ou poteaux-poutres béton avec planchers BB,
Approche Low Tech : Absence de climatisation avec système de ventilation naturelle et rafraichissement nocturne par ventilation naturelle,
Raccordement Réseau de Chauffage Urbain,
SMARTGRID avec 160 m² de panneaux PV en toiture en autoconsommation.
Images
Lotoarchilab
Hérault Arnod Architectures